Mere info +

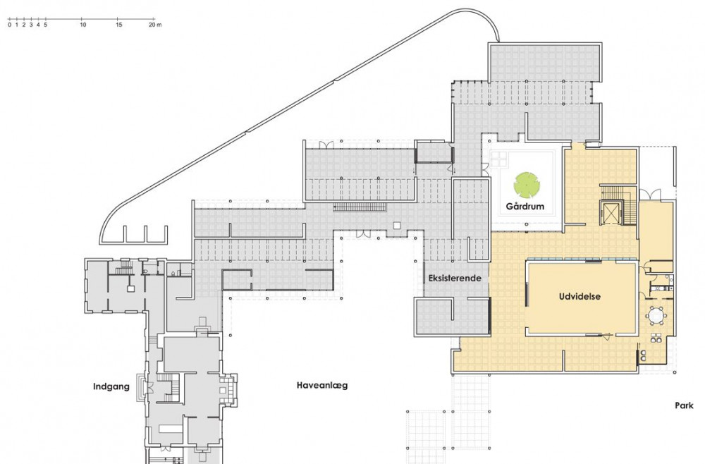
Grundplan

Stueetage

Eksisterende = Villaen 1906 og Udvidelsen 1981
Udvidelse = Færchfløjen 2011

Grundplan

Grundplan

Grundplan

bubble